Rouppe

Transformation d’un hôtel de maître et ses écuries en 2 logements et une annexe

180613 Rouppe 59 C
180613 Rouppe 84 C
180613 Rouppe 65 C
180613 Rouppe 63 C
180613 Rouppe 38 C
180613 Rouppe 15 C
180613 Rouppe 110 C
180613 Rouppe 145 C
180613 Rouppe 225 C
180613 Rouppe 184 C
180613 Rouppe 121 C
180613 Rouppe 262
180612 Rouppe Plan Dimplantation Page 0001
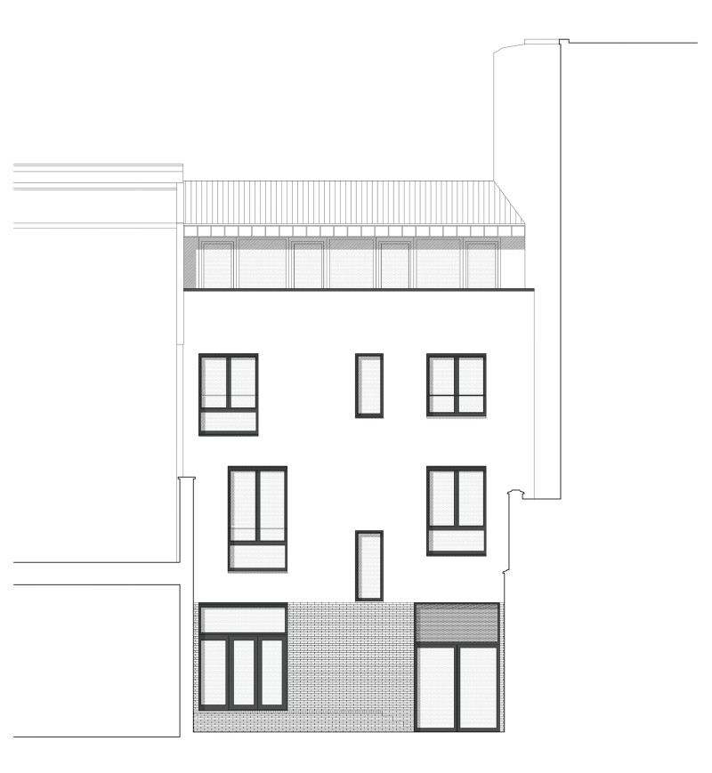
180612 Rouppe Faade Arrire Page 0001
180612 Rouppe Faade Avant Page 0001
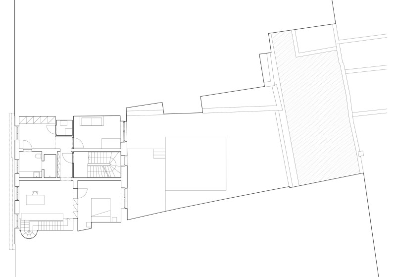
180612 Rouppe Plan 2me Tage Page 0001
180612 Rouppe Plan 1er Tage Page 0001
180612 Rouppe Axo Escaliers Page 0001
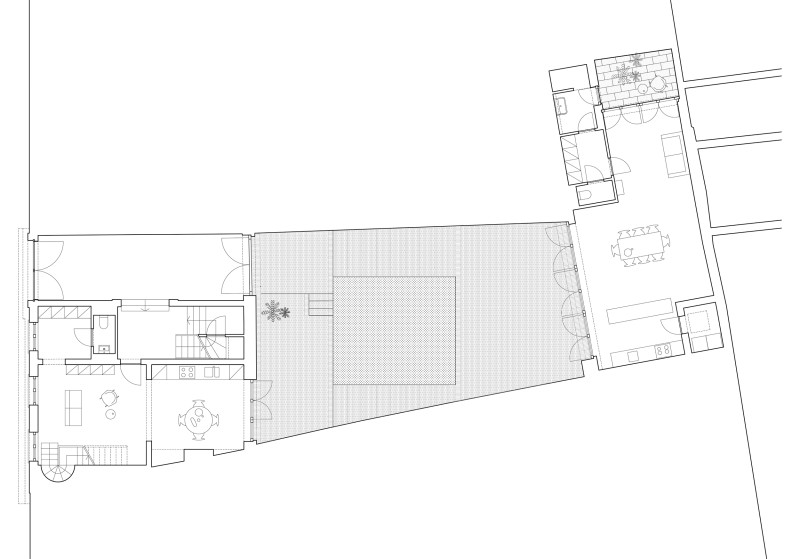
180612 Rouppe Axo Cour Intrieure Page 0001
180612 Rouppe Plan 3me Page 0001
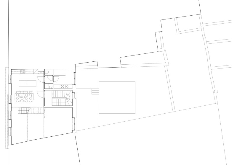
180612 Rouppe Plan Rdc Page 0001

Date

2018

Lieu

Bruxelles (B)

Type

Logement

Statut

Livré

Surface

546 m2

Stab

BESP

PEB

Enesta