Alouettes

Extension d’une maison unifamiliale dans une cité jardin classée

190611 Alouettes Stijn Bollaert 20
190611 Alouettes Stijn Bollaert 27
190611 Alouettes Stijn Bollaert 14
190611 Alouettes Stijn Bollaert 13
190611 Alouettes Stijn Bollaert 11
190611 Alouettes Stijn Bollaert 1
190611 Alouettes Stijn Bollaert 32
170608 Alouettes Vue 1
180628 Alouettes Plan Rdc Page 0001
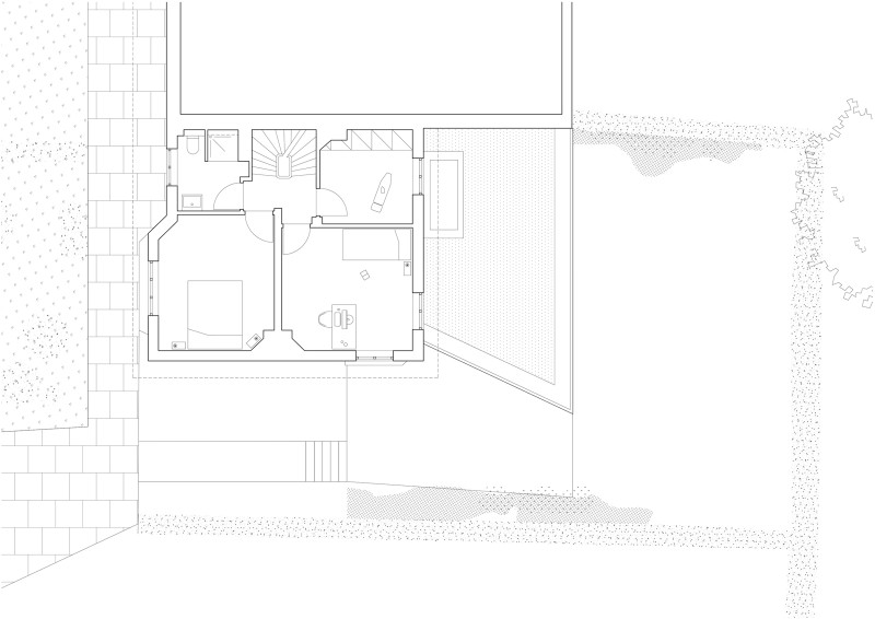
180628 Alouettes Plan R2 Page 0001
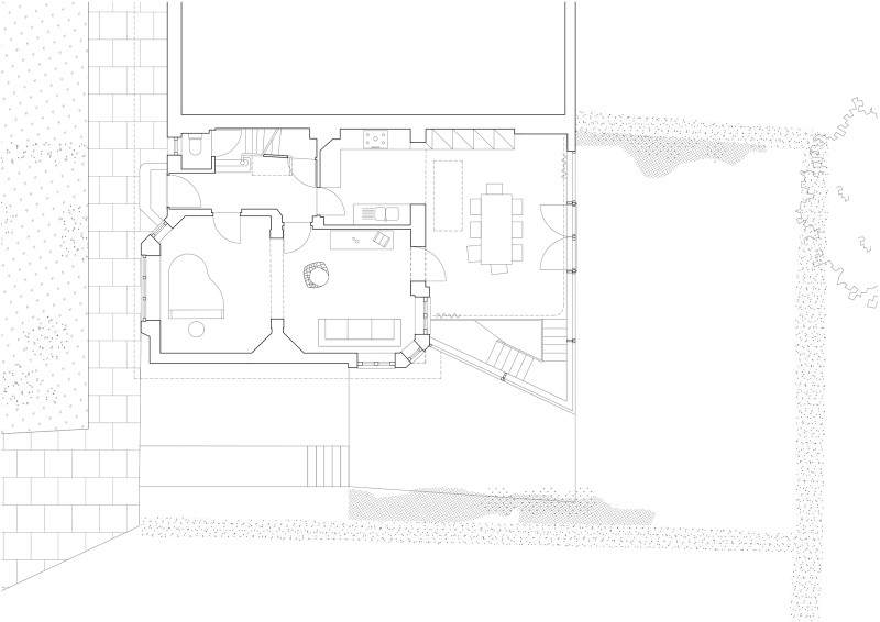
180628 Alouettes Plan R1 Page 0001
180528 Alouettes Plan Dimplantation Page 0001
180528 Alouettes Coupe Paysagre
141119 Alouettes Perspective
180628 Alouettes Faade Arrire Page 0001

Date

2018

Lieu

Woluwe-Saint-Pierre (B)

Type

Logement

Statut

Livré

Surface

75 m2

Stab

JZH & Partners

PEB

Enesta