Roi Chevalier

Transformation d’une maison unifamiliale 5 chambres de l’architecte Jacques Obozinski

Lp Chev 0025
Lp Chev 0054
Lp Chev 0180
Lp Chev 0109
Lp Chev 0196
Lp Chev 0239
Lp Chev 0353
Lp Chev 0242
Lp Chev 0302
Lp Chev 0381
170109 Roi Chevalier Test Cuisine Legendee Page 0001
180628 Roi Chevalier Coupe 01 Page 0001
180628 Roi Chevalier Axonomtrie Terrasse Et Cuisine Page 0001
150714 Roi Chevalier Maquette Ap 4
150714 Roi Chevalier Maquette Ap 10
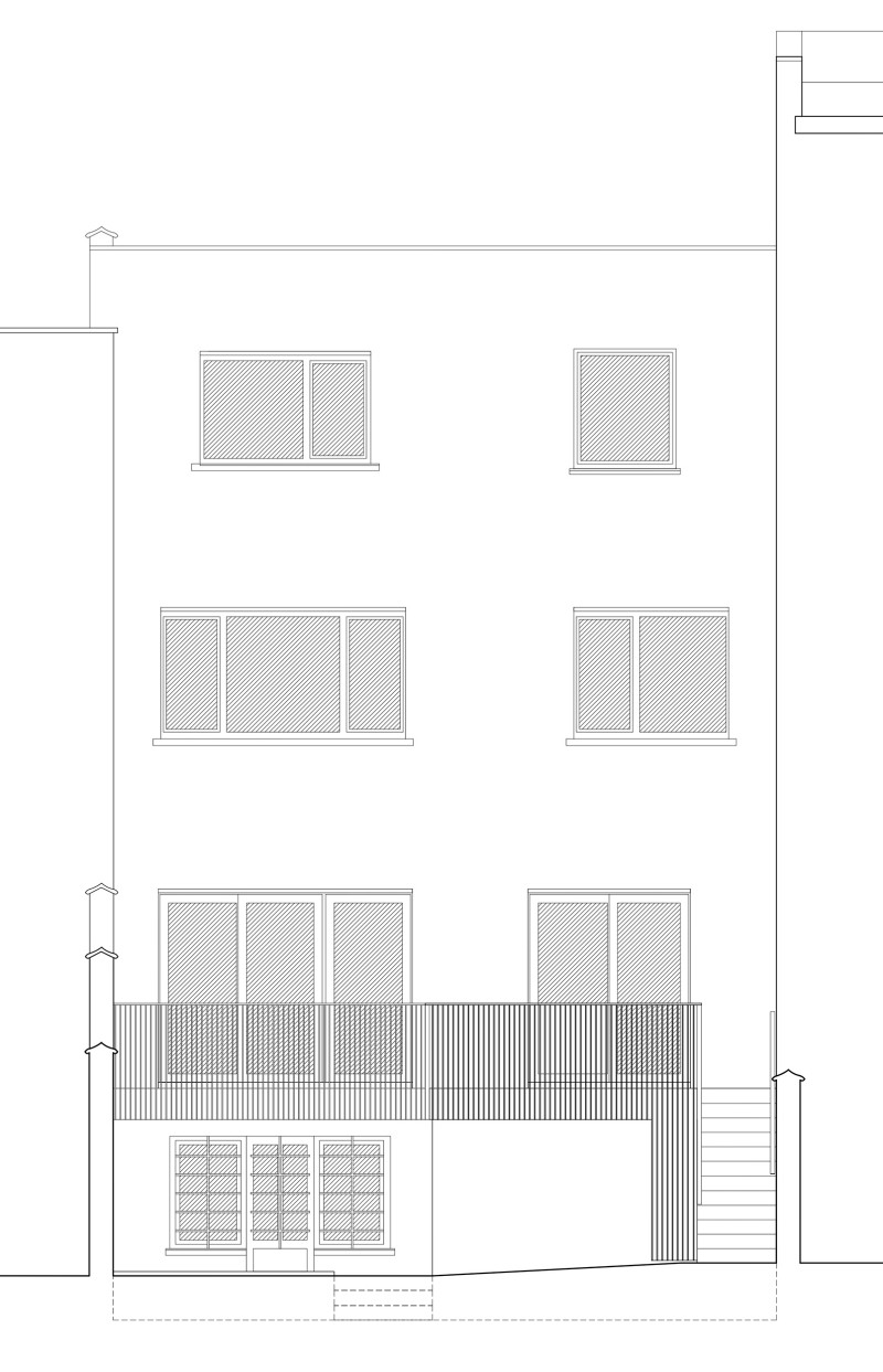
180628 Roi Chevalier Faade Arrire Page 0001
180628 Roi Chevalier Faade Avant Page 0001

Date

2017

Lieu

Woluwe-Saint-Lambert (B)

Type

Logement

Statut

Livré

Surface

333 m2

Stab

Enesta

CSS

Imhotep