Henry

Transformation et extension d’une maison unifamiliale

Copy Of 070815 Henry 007
Dscn6209 C
Prsentation Defnitif Recover Adj 07 Page 0001
Dscn6194 Cc
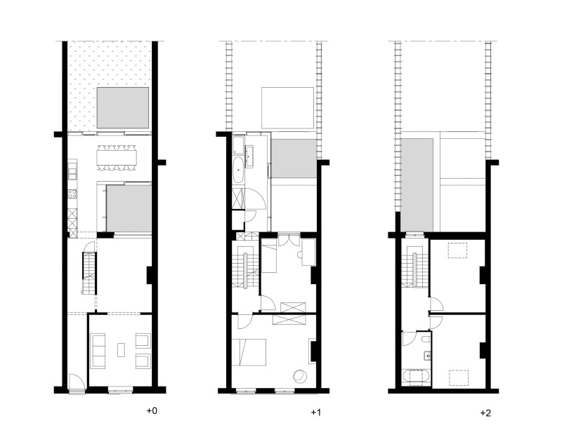
Pl Henry090710 13838
Dsc 0273

Date

2007

Lieu

Etterbeek (B)

Type

Logement

Statut

Livré

Surface

245 m2